Descriere ansamblu

      HIMSON® este un ansamblu rezidenial unic, modern si minimalist cu dotari si finisaje de exceptie, pentru ca tu sa te bucuri de un confort absolut. Apartamentele noi din cadrul HIMSON® sunt inteligent proiectate, creând suprafete ideale pentru toate activitatiile familiei tale. Am optat pentru o fatada ventilata din bond si balcoane cu sticla securizata, integrate într-o armonie perfecta. Tâmplaria exterioara în culoare gri antracit este din profil PVC – clasa energetica A+, 7 camere, sticla tripan low E4 season, securizata si tratata UV, pentru protectia întregii familii.


      Un stil arhitectural modernist, în care am integrat tehnologia cu nobletea materialelor de calitate. Construit pe o singura fundatie în forma de H, cu un regim de înaltime 2S + P + 8E, HIMSON® este cel mai mare proiect imobiliar unitar din Moldova, cu o amprenta la sol de 2.200mp si cu o suprafata totala construita de peste 32.500mp.


 DOTARI PREMIUM SI APLICATII SMART


Aspectul modern este potentat de calitatea materialelor si de modul de utilizare a acestora, totul pentru a asigura unicitatea designului interior si de a da personalitate spatiului. Arhitecti si designeri de top au creat un cumul de solutii premium care sa te reprezinte pe deplin. Pentru apartamentul tau poti opta pentru dotari SMART, un sistem inteligent de alertare a proprietarului în caz de incendiu, inundatie sau furt.


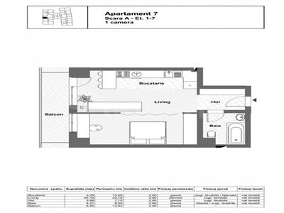
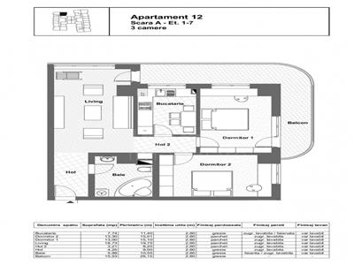
APARTAMENTE PE MARIMEA NEVOILOR TALE


Am creat 8 tipuri de apartamente cu suprafete între 32 si 92 mp. Pentru sistemul constructiv, am ales solutia cadrelor de beton armat si BCA de la producatori de top, atât datorita durabilitatii si a rezistentei în timp a acestora, cât si pentru eficientizarea cheltuielilor de întretinere.


Structura de rezistenta este pe cadre de beton armat si BCA de la producatori de top, atât datorita durabilitatii si a rezistentei în timp a acestora, cât si pentru eficientizarea cheltuielilor de întretinere, iar izolatia va fi cu vata bazaltica de 10 cm. Pentru a minimiza suficient riscul producerii unui eventual incendiu si pentru un plus de siguranta pentru proprietari pe fiecare etaj vor fi montati hidranti. De asemenea, separarea etajelor va fi realizata prin montarea unor usi speciale rezistente la foc, pentru o buna protectie si izolare a incintelor.


La interior apartamentele vor avea urmatoarele dotari: GRESIE, FAIANTA, OBIECTE SANITARE SI PARCHET DE IMPORT, CENTRALA TERMICA INDIVIDUALA ÎN CONDENSATIE, USI INTERIOR DIN LEMN, AER CONDITIONAT, PLACARI INTERIOARE DIN PIATRA NATURALA.


 Preturi si modalitati de plata in functie de avansul achitat la antecontract:




AVANS 100%: 1400 euro/ mp (pret valabil pentru apartamentele pozitionate pe etajele 1-7)


AVANS 50% la antecontract = 1400 euro si 50% rest de plata la predare =1500 euro


AVANS 25% la antecontract = 1400 euro si 75% rest de plata la predare = 1500 euro


Pret parcare supraterana = 9000 euro


Pret parcare subterana = 12000 euro( in doua transe)


       Pentru mai multe detalii si informatii,il puteti contacta pe agentul nostru Andrei Radulescu,la numarul de telefon 0744.276.068


       www.imperiaimobiliare.ro

Folosim Cookies Site-ul nostru foloseste cookies pentru a imbunatati experienta navigarii si a oferi servicii mai usor de utilizat.
Informatii detaliate despre cum le folosim in site si cum poti gestiona consimtamantul vei putea gasi in
Termeni si conditii de confidentialitate si Setari personalizate cookies Sunt de acord