Descriere apartament

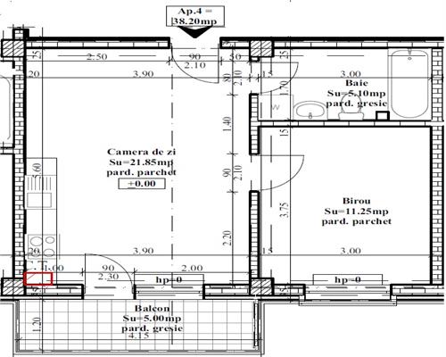
Apartament 2 camere, modelul open-space, 42 mp, pret 60000 euro cu TVA INCLUS.

Start vanzari in cel mai nou proiect imobiliar Sofia Concept, situat in Visan, alcatuit din imobile de 2 si 3 camere, cu suprafete ce variaza intre 43-67 mp.

Sofia Concept dispune de 4 blocuri cu un regim de inaltime D+P+4E, constructie din caramida si cadre de beton, fiecare bloc va fi prevazut cu lift, iar ca si materiale ca vor fi folosite la interior regasim:

- tamplarie cu suprafata vitrata mare 7 camere SALAMANDER tripan, CLASA A

- termosistem grafitat

- inclazire in pardosela

- usi interior MDF

- centrala termica prin condensare prevazuta cu panou de diatribuitori

- gresie, faianta parchet la alegere

- bai utilate complet

- lift modern

- zidărie integrală din cărămidă, interior – exterior – siguranță și durabilitate.

- gresie și faianță premium, format 60x120 cm – finisaje elegante și moderne.

- archet trafic intens – rezistent și estetic.

- uși interioare din MDF – aspect premium.

- ușă de intrare anti-efracție – siguranță sporită pentru locuința ta.

Cele 4 blocuri vor dispune de spatii verzi, spatii comerciale pentru diferite activitati ( cafenele, farmacie, etc. ), locuri de parcare, acces securizat in complex prevazut cu bariera si supraveghere video pentru un plus de siguranta.

Pentru mai multe detalii si informatii,il puteti contacta pe agentul nostru Andrei Radulescu,la numarul de telefon 0744.276.068

Caracteristici apartament

  • Zona:
  • Suprafata utila: 42 mp
  • Confort: 1
  • Compartimentare: open space
  • Etaj: 2/4
  • Numar Bai: 1
  • Numar Balcoane: 1
  • Numar Camere: 2
  • An Constructie: 2025

Caracteristici generale apartament

  • Acces:Fata
  • Acces internet:Fibra optica
  • Balcoane:Nu este inchis
  • Bucatarie:Da Nemobilata
  • Calorifere:Da
  • Clasa Energetica:C
  • Contorizare:Contor gaz Apometre Contor electric
  • Destinatie:Locuinta
  • Electrocasnice:Fara
  • Ferestre:PVC
  • Geam baie:Nu
  • Incalzire:Centrala proprie Incalzire prin pardoseala
  • Interfon:Interfon
  • Izolatii termice:Exterior
  • Lift:Lift
  • Mobilat:Nemobilat
  • Pereti:Lavabil Faianta
  • Podele:Parchet Gresie
  • Servicii:Administrare Menaj
  • Stadiu Finisare:In constructie
  • Strazi:Asfaltate
  • Structura Casa:Caramida
  • Tip Bloc:Bloc
  • Tip Structura Bloc:Cadre
  • Usa intrare:Metal
  • Usi:Din Lemn
  • Utilitati:Curent Apa Canalizare Gaz
  • Vecinatati Spatii:Autobuz Zona comerciala Supermarket Fastfood Parc Restaurant/pub Scoala/gradinita
  • Zidarie:Caramida

Localizare pe harta

Folosim Cookies Site-ul nostru foloseste cookies pentru a imbunatati experienta navigarii si a oferi servicii mai usor de utilizat.
Informatii detaliate despre cum le folosim in site si cum poti gestiona consimtamantul vei putea gasi in
Termeni si conditii de confidentialitate si Setari personalizate cookies Sunt de acord