Descriere casa vila

Vila insiruita formata din 5 Camere, 2 bai,dressing si terasa proprie in zona Breazu - Rediu, constructie 2024, din caramida (zidarie portanta), regim de inaltime P+1, avand o suprafata utila de 120 mp pe un teren in suprafata de 150 mp + cota drum.

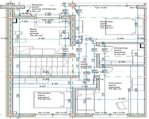
Parter: living si dining cu iesire pe terasa, bucatarie cu iesire pe terasa,dormitor/birou, hol, baie, spatiu depozitare
Etaj: 3 dormitoare cu suprafete generoase, hol, baie, balcon

Toate apartamentele au un grad ridicat de finisaje la interioare precum si materiale de foarte buna calitate folosite la amenajarea suprafetelor interioare si exterioare.

Pentru imobilulul a caror rezervare se face din timp, dezvoltatorul ofera posibilitatea amenajarii interioare si personalizarea interiorului dupa preferintele clientului.

Structura imobilului este realizata pe o structura duala (grinzi si stalpi din beton armat cu zidarie portanta), iar inchiderile peretilor s-a realizat din caramida Brikstone, iar pentru o mai buna izolare s-a folosit polistiren de 10 cm EPS 80 peste care s-a aplicat o tencuiala de cea mai buna calitate.

Pret de la 165.000 euro 

Pentru mai multe detalii il puteti contacta pe consilierul nostru imobiliar Andrei Radulescu: 0744.276.068

Caracteristici casa vila

  • Numar Camere: 5
  • Zona:
  • Suprafata utila: 120 mp
  • Reper:
  • Strazi: Asfaltate
  • Numar Dormitoare: 4
  • Tip casa: Insiruita
  • Numar Bai: 2
  • Regim Inaltime: 1
  • Numar Bucatarii: 1
  • An Constructie: 2024
  • Suprafata Teren: 150 mp
  • Acces: Auto, Pietonal
  • Destinatie: Locuinta

Caracteristici generale casa vila

  • Acces auto:Acces auto
  • Acces Casa:Auto Pietonal
  • Acces internet:Fibra optica
  • Acoperis:Lindab
  • Bucatarie:Inchisa Da
  • Calorifere:Da
  • Clasa Energetica:B
  • Contorizare:Apometre Contor electric Contor gaz
  • Curte:Gradina Pavata
  • Destinatie:Locuinta
  • Dotari:Scara interioara
  • Electrocasnice:Fara
  • Ferestre Casa:Term. PVC
  • Geam baie:Da
  • Incalzire Casa:Incalzire prin pardoseala Centrala Termica
  • Izolatii termice:Exterior
  • Materiale:Piatra naturala Beton Armat Caramida Porotherm Perete Cortina Alte
  • Mobilat:Nemobilat
  • Pereti:Lavabil Faianta
  • Plansee:Beton Armat
  • Podele:Gresie Parchet
  • Stadiu Finisare:Semifinisat
  • Strazi:Asfaltate
  • Teren imprejmuit:Teren imprejmuit
  • Tip Casa:Insiruita
  • Tip Curte:Individuala
  • Usa intrare:PVC
  • Usi:Din Lemn
  • Utilitati:Curent Gaz Fosa septica Internet Apa
  • Zidarie:Caramida

Localizare pe harta

Folosim Cookies Site-ul nostru foloseste cookies pentru a imbunatati experienta navigarii si a oferi servicii mai usor de utilizat.
Informatii detaliate despre cum le folosim in site si cum poti gestiona consimtamantul vei putea gasi in
Termeni si conditii de confidentialitate si Setari personalizate cookies Sunt de acord