Descriere spatiu comercial

Agentia Imobiliara IMPERIA va propune spre inchiriere un spatiu comercial, situat la bulevard, la parterul unui bloc, amenajat complet si cu vitrina la stada foarte luminoasa.

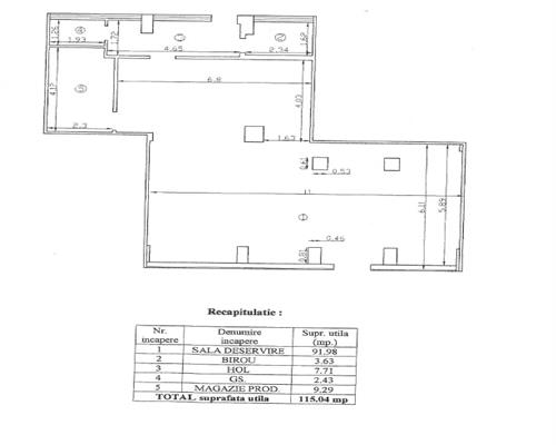
Imobilul cu suprafata de 115 mp, este imbunatatit cu: Centrala termica proprie, aer conditionat, sistem supraveghere. 

Spatiul se inchiriaza la pretul de 2590 Euro + TVA!

Se percep o luna avans si o luna garantie! Perioada minima de contractare 2 ani cu perioada discutabila de contract inchis. NU SE PERCEPE COMISION!

Pentru mai multe detalii contactati reprezentantul nostru Tiberiu Ghiatau: 0758.082.028

Caracteristici spatiu comercial

  • Numar Camere: 1
  • Zona: Central
  • Suprafata utila: 115 mp
  • Reper:
  • Tip Spatiu: Spatii comerciale
  • Structura: Beton

Caracteristici generale spatiu comercial

  • Incalzire Casa:Centrala Termica
  • Lift:Lift
  • Structura Casa:Beton

Localizare pe harta

Folosim Cookies Site-ul nostru foloseste cookies pentru a imbunatati experienta navigarii si a oferi servicii mai usor de utilizat.
Informatii detaliate despre cum le folosim in site si cum poti gestiona consimtamantul vei putea gasi in
Termeni si conditii de confidentialitate si Setari personalizate cookies Sunt de acord